WESTBORO HOME
Project details
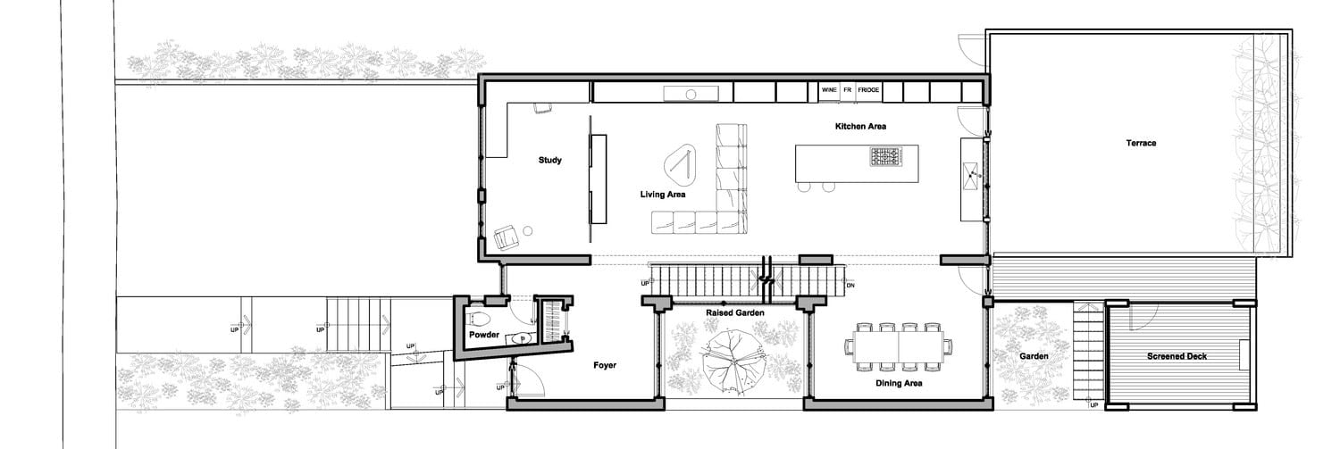
This home managed to achieve a remarkable degree of spaciousness and light despite its location on a narrow lot with strict code limitations on side windows. Added to these challenges was a steep difference in grade between adjacent properties.
Upon stepping into the foyer, one is immediately presented with a series of linked views that unite the very front of the home to the very back of the property. The opposing wall of the interior foyer is entirely glass and shows the exterior, raised garden courtyard. This view continues through the courtyard and joins the interior of the formal dining room; then extends to an exterior garden bridge over the lower rear yard that ultimately joins visually to the interior of a three-season
reading pavilion set in the rear yard. Privacy is achieved despite extensive windows by placing the main living areas a full-flight above street level.
Designing the home around a 2-storey light-filled raised garden courtyard allowed for use of an extensive amount of glass that would otherwise have not been possible due to building codes. The courtyard’s three interior sides are filled with windows and bring natural light into the heart of the home on both living floors. The courtyard is filled with ornamental plantings, creating a lush, visual focus for each of the primary living spaces of the home.


