HILL-MAHEUX COTTAGE
Project details
This secluded forest retreat belonging to a middle-aged couple involved in art conservation is more than a forever home – they want to pass it onto their daughter. And while functionality was a prime consideration in its design, so too was the importance of creating meaning in the space.
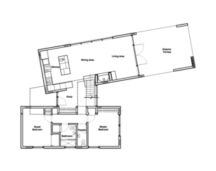
Designed using two “bars” of living space – one private containing bedrooms, bathrooms and storage, and one public containing family living areas, the home is joined together by an elliptical loft that acts as the daughter’s domain. The loft intersects each ground-floor volume and hovers over the foyer giving shelter to the entry below.
The underside of the loft is surfaced with a “quilt” of steel plates interspersed with copper and zinc printing plates that the clients
inherited from a printmaker friend. Many of the plates are etched with landscapes, while others are etched by the 3 family members themselves. Because yet-unetched printing plates are also installed in the “quilt” and can be easily removed, the ceiling evolves with time as visiting family and friends are invited to leave their mark. In this way, the house keeps a physical record of its past.
The idea of etched landscapes is also extended to the exterior envelope of the house where panels are incised with a pattern of abstracted reeds. The backs of these panels are lined with reflective aluminum. As such, given that the reflective material is recessed, the reeds sit dormant until sunlight falls directly on them. In this way, the facades transform in a very nuanced manner throughout the course of the day and seasons.



