CHELSEA HILL HOUSE
Project details
Clearly delineating space for a single mother and her teenagers was a primary consideration for this relatively small home. Spaces had to be segregated without feeling choppy, while also maintaining an open, airy environment.
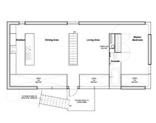
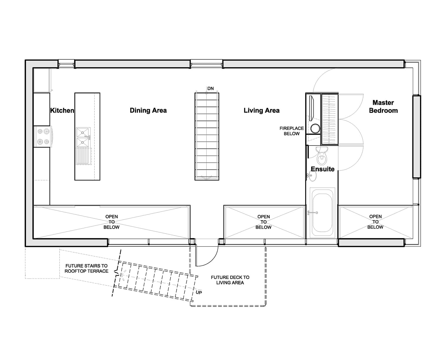
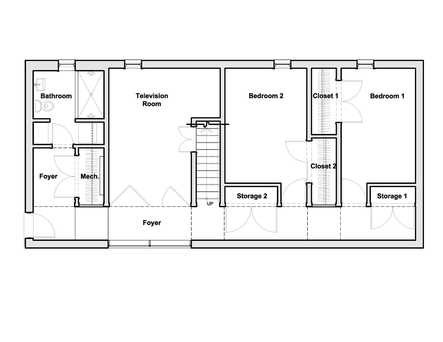
Overlooking a beautiful river valley, the house was conceived as a simple masonry volume with the ground floor being dedicated exclusively to the teenagers with bedrooms, TV area and sports equipment storage. The second storey features all of the common living spaces, as well as the master bedroom and bathroom. The 2 levels are joined by the double-height entryway and hallway below, creating the illusion of the primary living level floating above the serene vista beyond.
While the vast majority of building materials have an industrial feel, the look is countered with a sumptuous soaker tub suspended in the double-height space that overlooks the valley.
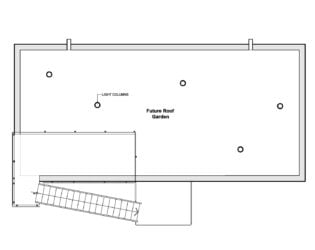
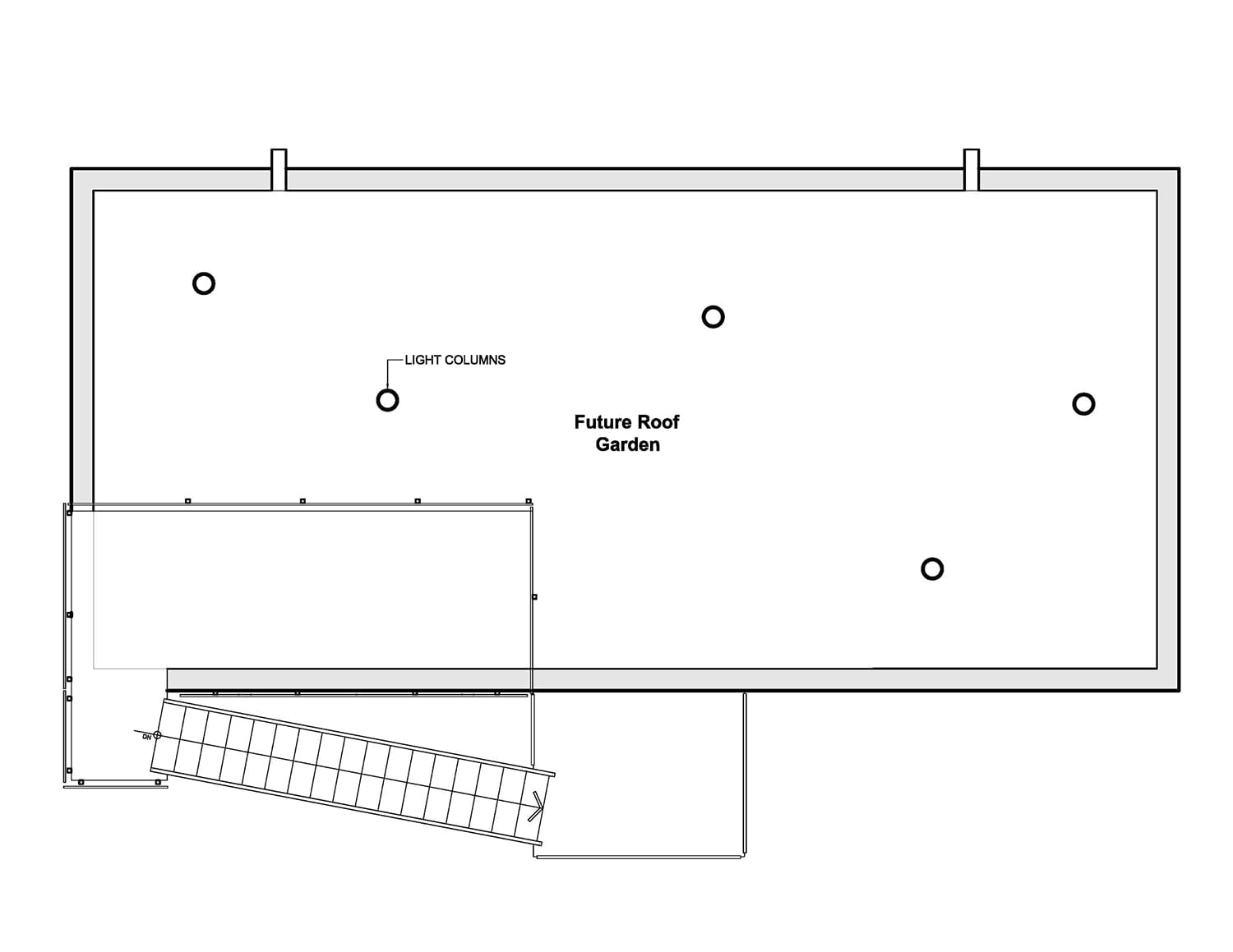
The lightness of the home’s interior is contrasted by the solidity of the exterior. In response to the project’s modest budget, industrial concrete blocks were used as the exterior veneer, but in an unconventional manner with the rough material arranged in a pinwheel pattern creating a playful façade. Lastly, because the house is small, an exterior, screened-in living/dining area was designed for the flat roof.

