A BOWER HOUSE

Project details

Our client for this project had two main objectives. The first is he wanted to avoid the high cost of purchasing lakeside property while still having the views that come with waterfront property. Working with a long, narrow lot 700 metres away from the shore of the lake, you might say we thought outside the lot on this project. Capitalizing on the view from above, we constructed a master bedroom that soared high above the main floor – forty feet above the treetops in fact.

This plan however came with some expected bylaw challenges. The home’s height was restricted to “2 storeys,” but the code did not state that a second floor had to be contiguous to the ground floor.

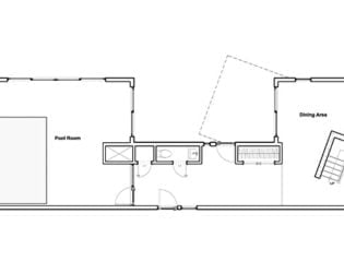
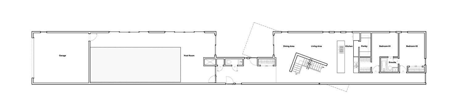
The main floor of the home is an elongated expanse that includes all of the common spaces plus two additional bedrooms, an indoor pool and a garage. This configuration provided the desired privacy while harnessing the view of the lake beyond.

Not surprisingly, the city bylaws were re-written shortly after construction.

The second objective for our client was to use this new home design to successfully attract a mate. We named this home after Bowerbirds, a bird species renowned for their unique courtship behaviour, where males build an elaborate structure in an attempt to attract a mate.

Location:

Niagara Peninsula, Ontario

Sf:

5,100

Floor Plans and Drawings

In the media

Maclean's magazine online article showing Fort Erie home designed by Kariouk Architects
Maclean’s – A Bower House
Digital
Dezeen website screenshot thumbnail of A Bower House feature in 2016
Dezeen – A Bower House
Digital
Contemporist website screenshot thumbnail of A Bower House feature in 2016
Contemporist – A Bedroom Inside a Tower
Digital
Stuff website screenshot thumbnail of A Bower House feature in 2016
Stuff – Canadian Builds a Bower Bird Love Nest
Digital
Read Lagom website screenshot thumbnail of A Bower House feature in 2016
Lagom – My Craft: Architect Paul Kariouk
Digital
ArchiDiaries – A Bower House
Digital