Project details

When a high-tech entrepreneur and art professor couple embarked on the large-scale renovation of their rundown Victorian home, they knew they wanted something much more open and designed for modern family life. But conversely, they want a distinct separation of work and home life. How would we move this home into the 21st century but still echo some of its Victorian elements?

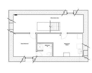
Because the footprint of the house is approximately seventy square meters, it was not possible to create a loft-like setting on the ground floor that seemed simultaneously open and provided the required distinct work/living spaces.

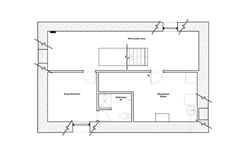
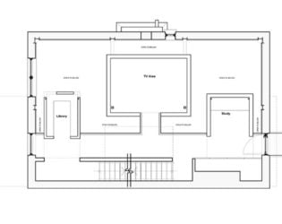
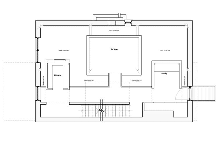
Reenvisaging the home as a vertical loft – an open, 4-storey volume reaching from the basement to the ceiling of the new roof, the new main level and former basement level are opened to each other by a wide stair that highlights views to the home’s original stone foundation walls.

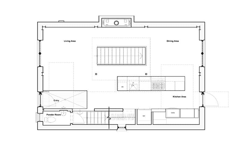
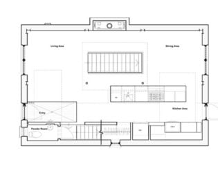
The former main living level, once segregated into 4 separate rooms, is now made open and spacious. New, large windows both at the front and rear of the new parlour, visually extend that space into the front and backyards, thereby enabling views of the Rideau Canal.

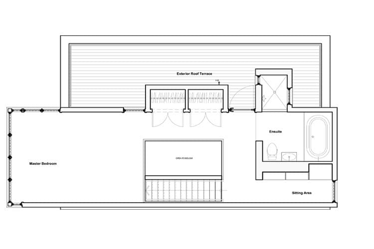
In order to achieve the seemingly paradoxical request for a loft-like home but with spaces as private as the former Victorian ones, the study, den, and “book vault” are designed as distinct volumes suspended inside the larger, four-storey volume. Because these volumes “float” high up within the now-emptied shell of the original house, they achieve the required visual privacy from the parlour below and the street outside (despite the expanded areas of windows).

The most private areas of the house (closets, toilets, and stairs) are arranged along the south wall and are shielded by a 3-storey hickory “modesty screen.” At the top level, the new volume of the master bedroom suite cantilevers over the front façade, forming a canopy over the entry.

Location:

Ottawa, Ontario

Sf:

2,371

Floor Plans and Drawings

In the media

Architizer – Midnight Maple: 12 Canadian Homes Cloaked in Black
Digital
Centras Aido Namas magazine cover thumbnail
Centras – Aido Namas
Books
100 Dream Houses cover thumbnail of Hurteau-Miller Residence feature
100 Dream Houses – Echo House
Books
Living & Design Taiwan magazine cover thumbnail
Living & Design (Taiwan) – Building Echoed in the Past and Present
Print
Construir magazine cover thumbnail
Construir – Livros Em Ordem
Print
Project Casa cover thumbnail
Projetar Casa – Dream House Part I
Print
Maverick Style cover thumbnail of Hurteau-Miller Residence feature
Maverick Style – Echo House Residential Appearance and Details Design
Print
Homes and Cottages magazine cover thumbnail of Echo House feature
Canadian Homes & Cottages Magazine – Rideau Redo
Print
Ottawa Magazine: Echo House feature cover thumbnail
Ottawa Magazine – Echo House
Print
Contemporist website screenshot thumbnail of Echo House feature
Contemporist – The Echo House
Digital
Luxury Home Quarterly magazine cover thumbnail of Hurteau-Miller Residence feature
Luxury Home Quarterly – The Plans: Kariouk Associates
Print
ArchiDiaries – Echo House
Digital