Red Sky, Quebec City
Kariouk Architects enters competitions for public landmarks as a way to continuously expand and push our design skills. They’re also an exciting way to strengthen our team dynamic, including with the engineers and designers with whom we love to collaborate. In 2020, we were among the 200 entrants in the International Garden Festival at Les Jardins de Métis. The “Red Sky” design was the result.
Competition
The design competition was organized by the Les Jardins de Métis (Reford Gardens), which are located on Quebec’s Gaspé Peninsula, on the south shore of the St. Lawrence River. Every two years they solicit new proposals for their International Garden Festival. In 2020, participants were invited to explore hybridization within the realm of contemporary garden practices. That year’s edition intended to cross-breed landscape architecture, garden design, architecture, visual arts, industrial design, cuisine, and other creative disciplines, as well as in relation to plants (both native and exotic) and materials (both natural and manufactured).
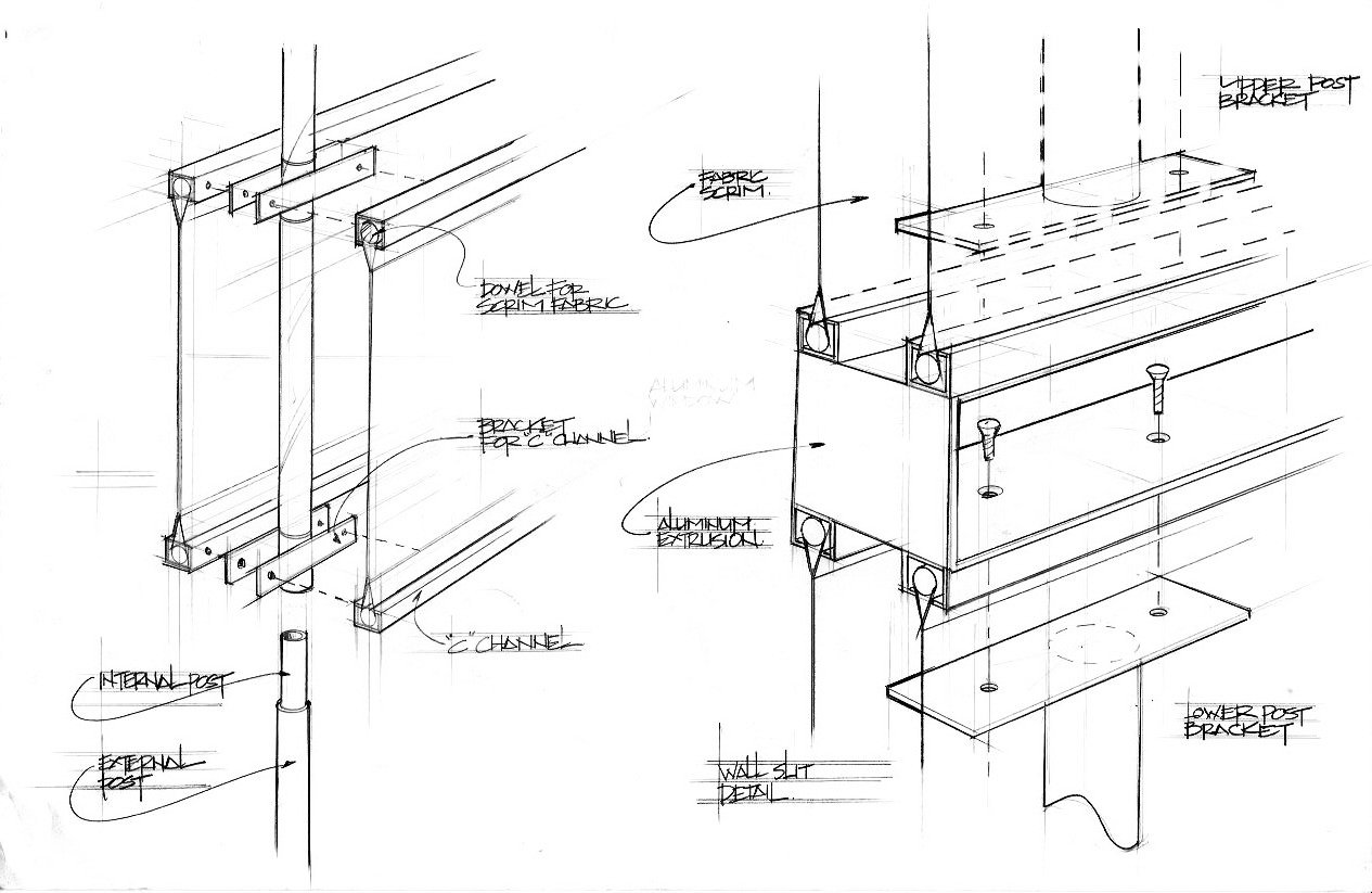
For this proposed design, Kariouk Architects partnered with the structural engineer, Daniel Bonardi, who has collaborated extensively with us (he received his training with Ove Arup, the world’s most celebrated and visionary engineering firm). Industrial designer Walter Zanetti also contributed to the design by bringing his knowledge of innovative material fabrication and assembly methods.
Métisages (Hybridization)
Gardens are miniaturized landscapes, thus they are hybrids and juxtapositions. Whereas gardens typically juxtapose organic elements that do not coexist in nature, our garden juxtaposes an era’s cultural readings of colour. As breezes are directed by our garden’s walls, colours blow across the sky, ground, and the visitors. An immersive sensory experience is created, but the interpretations of that experience will be as varied as the backgrounds of the visitors to Reford Gardens in Grand-Métis, Québec.
The key materials of this “garden” are immaterial: light, colour, and wind. In our industrialized world these characteristics, as with all things associated with “nature”, are considered favourably. Ironically though, not long ago, to the early Indigenous and Europeans in Gaspé, nature was often considered life-threatening as much as life-giving.

In these opposing cultural perspectives, nature itself can be understood as an intermediary; this condition is signified in the mariners’ rubric, “Red Sky at night, sailors’ delight; Red sky at morning, sailors take warning”. The context into which “nature” is placed causes it to shift from a condition of safety to peril. To this end, our “clouds” create a light show of delight, but perhaps for others, a red sky suggests something has gone wrong with nature.

The project presents a series of translucent, red weather vanes, “clouds” that read the direction and strength of sea winds, and when they overlap very different densities of colour and light are splashed. Wind walls set adjacently, which are adaptable to various sites, create a Venturi effect, accelerating wind currents; a cacophony of colour is unfurled.




